VA-System

I Benders sortiment för VA-System hittar du beständiga lösningar och produkter inom vatten- och avloppssystem anpassade för framtidens långsiktiga och viktiga samhällsbyggande.

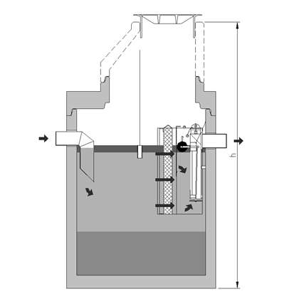
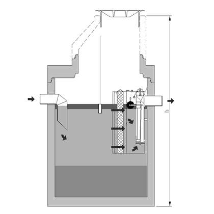
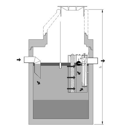
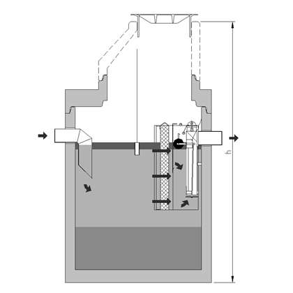
Alfa Miljö- och Avskiljaranläggningar

Avskiljare används om spillvattnet innehåller mer än obetydliga mängder av bensin, olja, fett eller slam som medför risk för avsättning.