Alfa Miljö- och Avskiljaranläggningar
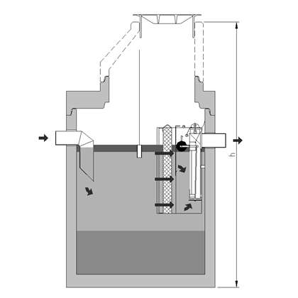
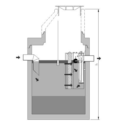
Avskiljare används om spillvattnet innehåller mer än obetydliga mängder av bensin, olja, fett eller slam som medför risk för avsättning.
Avskiljare används om spillvattnet innehåller mer än obetydliga mängder av bensin, olja, fett eller slam som medför risk för avsättning.